HISTORIC DISTRICT – URBAN TOWNHOME

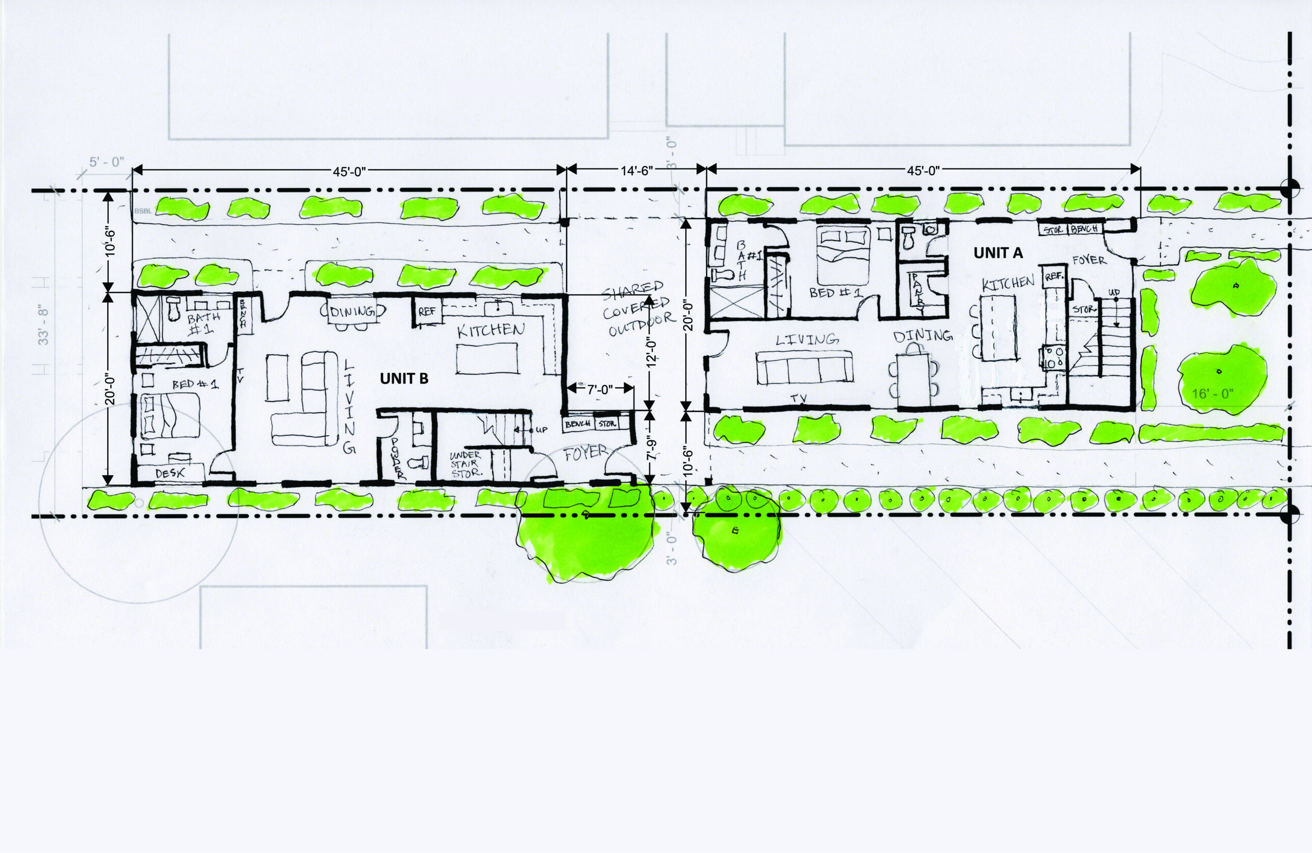
While working with Fusion Architecture, Omar was fortunate enough to work on this two-family dwelling in a historic neighborhood. The goals were to integrate with the surrounding historic architectural language while allowing for flexible spatial planning which would allow this building to be used by the current primary inhabitants, university students, while allowing for the potential to be sold separately as uses change across time.

Credits

Location:  Spokane, WA

Contractor: TBD

Built:  TBD

Structural Engineering:  Facet 

Building Area:  3,534 SF