MOUNTAIN HOUSE

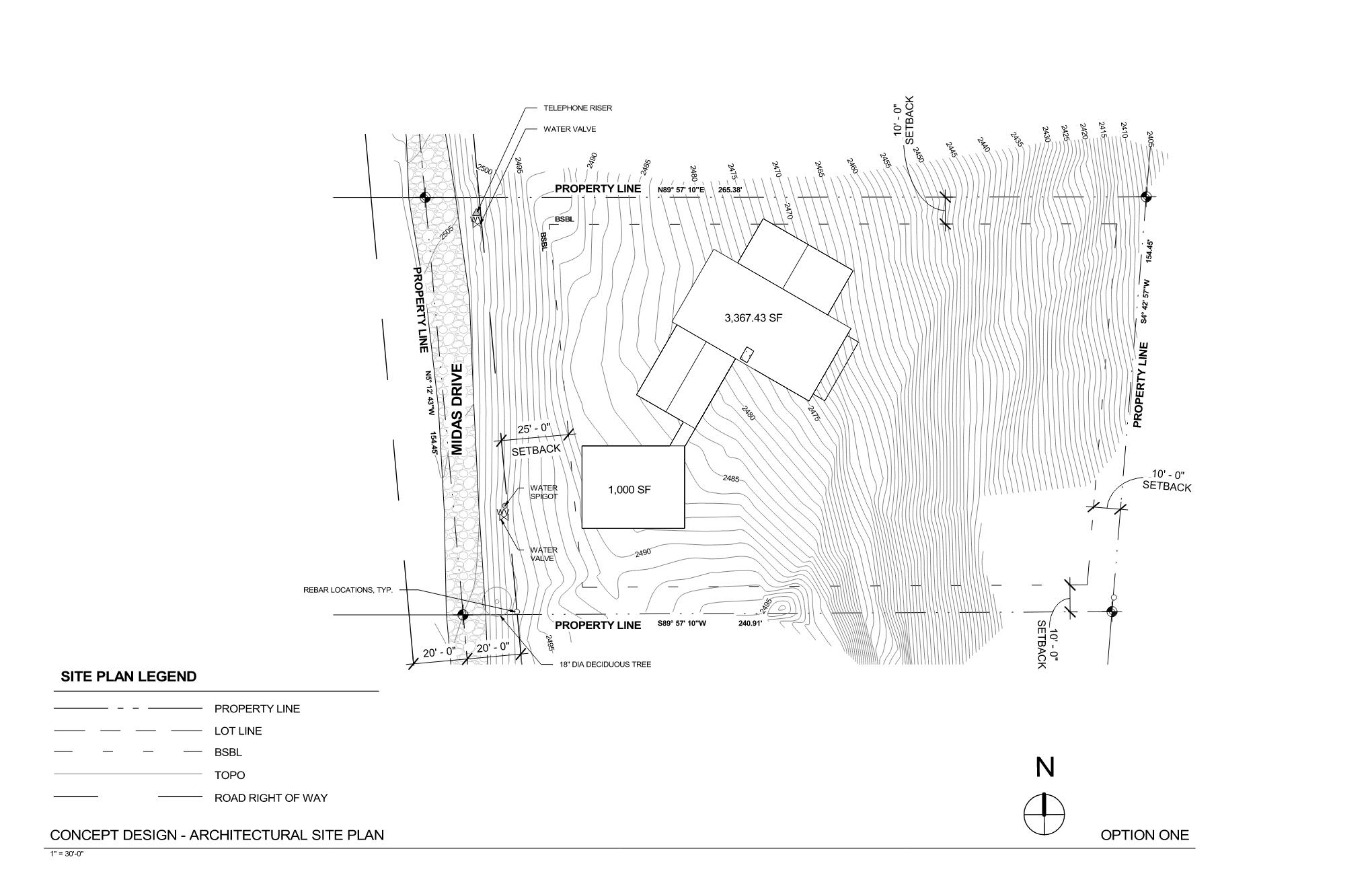
This exploration of the unbuilt studies the potential in designing site specific custom homes in prime real estate vs. the standard infill approach.  To take full advantage of an already stunning site, one must dial back and insert oneself in a delicate manner, using the existing landscape as a guide while exploring the programmatic needs of each unique client. 

Credits

Location:  Sandpoint, ID

UNBUILT

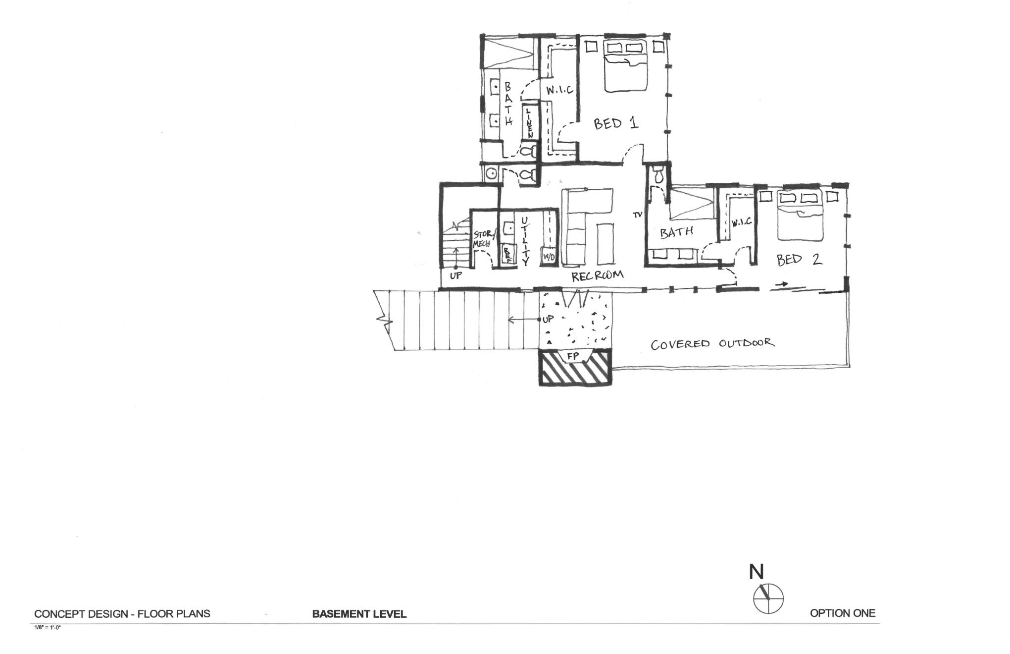
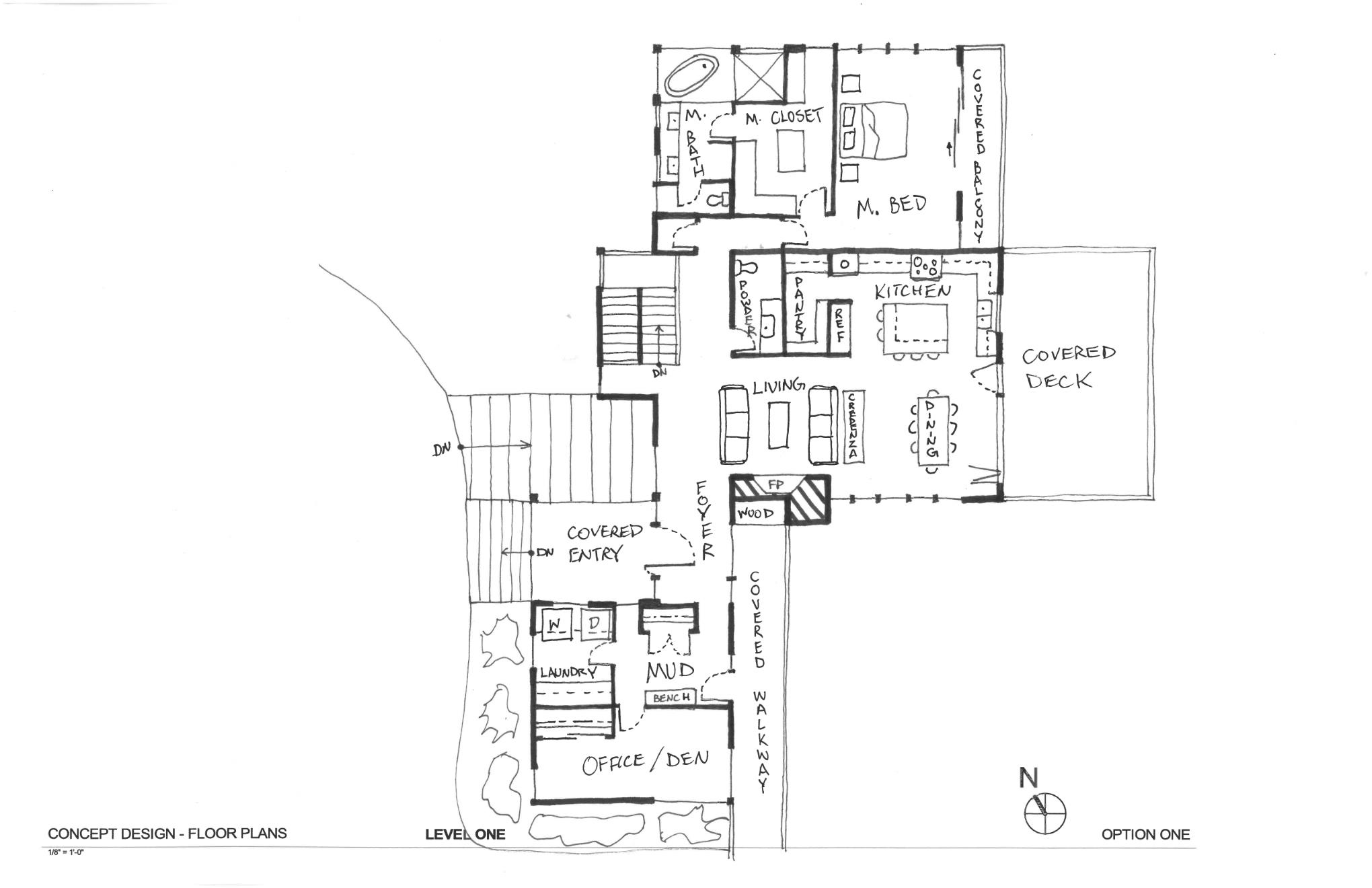
Building Area:  4,367 SF