P.O.R. RETREAT

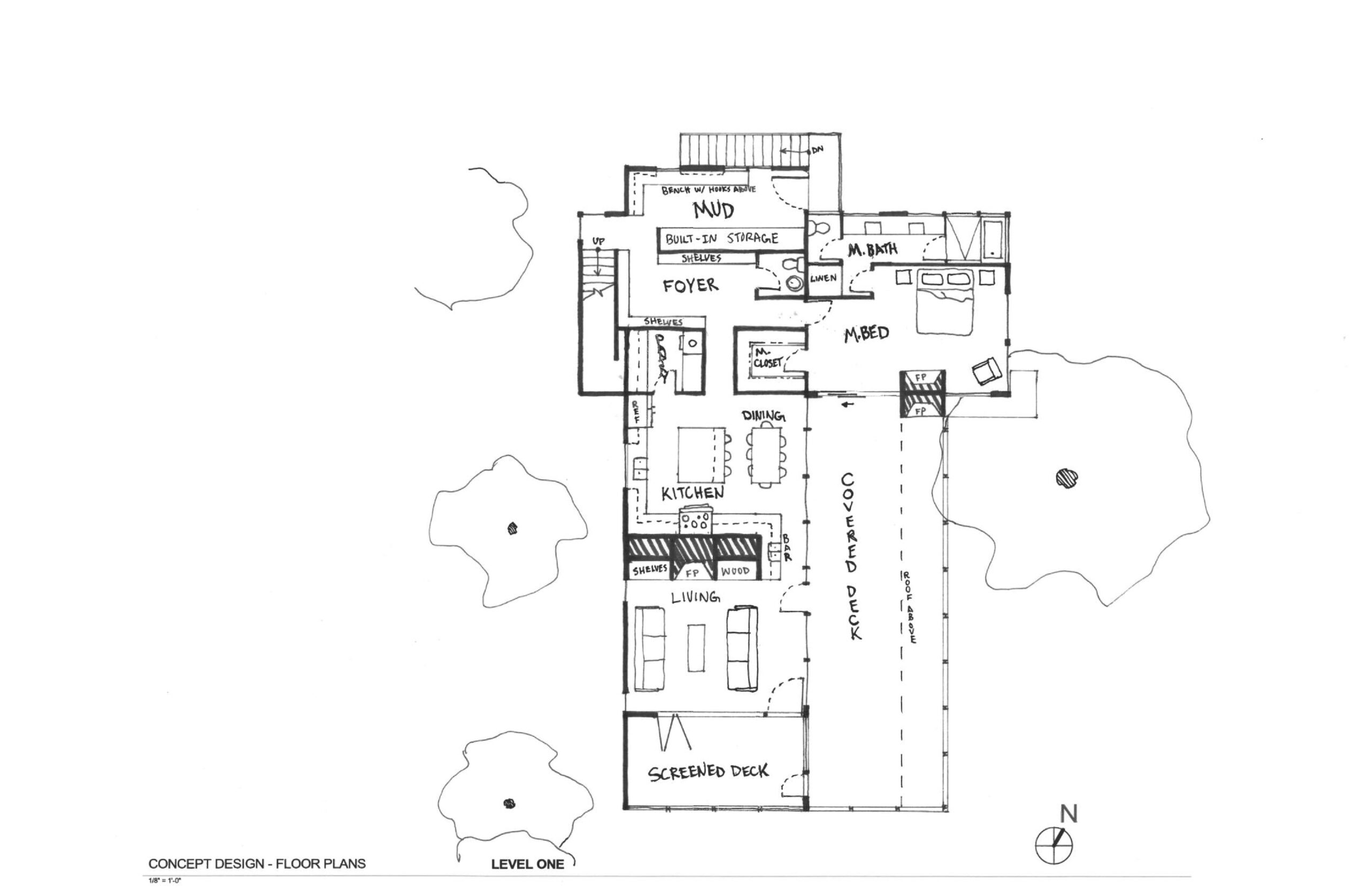
Located on a scenic portion of the Pend Oreille River, this cabin interjects itself into the existing ecology by lightly touching down and allowing for a greater appreciation of the river front. The iteration that prevailed was the product of close collaboration with the client, satisfying their desires while conforming to a complex site.  This project is slated to be built 2026 and was one of the many projects Omar managed and designed during his time at Fusion Architecture.

P.O.R. RETREAT

Located on a scenic portion of the Pend Oreille River, this cabin interjects itself into the existing ecology by lightly touching down and allowing for a greater appreciation of the river front. The iteration that prevailed was the product of close collaboration with the client, satisfying their desires while conforming to a complex site.  This project is slated to be built 2025 and was one of the many projects Omar managed and designed during his time at Fusion Architecture.

Credits

Location:  Cusick, WA

Contractor: TBD

Built:  Slated to be built 2026

Structural Engineering:  Facet 

Geotechnical Engineering:  Liberty Geotech

Building Area:  3,229 SF

Credits

Location:  Cusick, WA

Contractor: TBD

Built:  Slated to be built 2026

Structural Engineering:  Facet 

Geotechnical Engineering:  Liberty Geotech

Building Area:  3,229 SF